
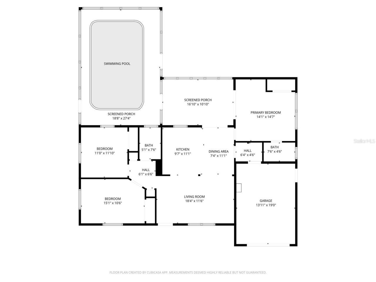
Welcome to this beautifully updated 3-bedroom, 2-bathroom home, completely transformed with modern finishes and thoughtful upgrades throughout. Located just minutes from world-class beaches, shopping centers, and beautiful parks, this property offers the perfect blend of resort-style living and everyday convenience. Step inside to discover a bright, open-concept living space featuring fresh interior and exterior paint, elegant new luxury vinyl plank flooring, and crisp 5-inch baseboards that giv...Welcome to this beautifully updated 3-bedroom, 2-bathroom home, completely transformed with modern finishes and thoughtful upgrades throughout. Located just minutes from world-class beaches, shopping centers, and beautiful parks, this property offers the perfect blend of resort-style living and everyday convenience. Step inside to discover a bright, open-concept living space featuring fresh interior and exterior paint, elegant new luxury vinyl plank flooring, and crisp 5-inch baseboards that give the home a clean, contemporary feel. The gourmet kitchen has been fully renovated with brand new cabinets, stunning quartz countertops, a stylish new backsplash, and NEW stainless-steel appliances-perfect for both casual meals and entertaining. Both bathrooms have been completely remodeled with brand new cabinets, elegant quartz counters, and beautiful new tile flooring and walls. The highlight of this home is the expansive Florida room overlooking the spacious, fully fenced backyard and sparkling pool. The pool has been fully refinished with a new surface and features new pool equipment. At 6 feet deep West facing, it's ideal for swimming, relaxing, and enjoying Florida sunsets with family and friends. Other improvements include NEW Roof (2026) NEW Electrical Panel (2026). Make your appointment today!
View MoreCourtesy of
Agency Name: MIHARA & ASSOCIATES INC.
Agency Contact: 813-960-2300
Agent Name: Michael Dickey
Presented by
Agent Name: Coral Springs
Agent Phone: 954.752.0900
Agency Title: The Keyes Company
Request Info
Send an email with a link to
8733 Cochise Lane , Port Richey, FL 34668.
Email 8733 Cochise Lane , Port Richey, FL 34668
Thank you for your inquiry! As a thank you, we have a Special Mortgage Offer for You.
We would like to provide you a free, no-obligation, home loan pre-approval review.